揚州國千 · 狀元湖科創園(高郵)
主導產業:智慧照明、汽車零部件、數字信息
招商熱線:一五三七一三三六七一 一(劉經理)
項目地址:江蘇省揚州市高郵市神居山路與望湖路交匯處往西100米
[項目簡介]
項目位于高郵高新區送橋鎮,園區占地約80畝,總建筑面積約90000㎡,由北京國千智能科技有限公司 開發建設,主要圍繞[智慧照明]、[汽車零部件]及[數字信息]等產業大力招引專精特新企業進駐,由國內知名策劃機構和規劃設計院共同打造的生態型、低密度、智能化,集研發、生產、孵化、辦公于一體的新型產業園。
[項目區位]
項目北鄰神居山路,南接梧桐路,東聯望湖路,西接天山大道;
?公路:周邊省道S125、S333、國道G345
?高速:新揚高速陳集出入口,寧鹽高速出口
[產品戶型]
園區主入口位于神居山路,園區主入口最寬處19米,出入口非常大氣,內部一般道路寬度為12m左右,轉彎半徑滿足17m左右大型貨車通行,常規中大型貨車都能無障礙通行。
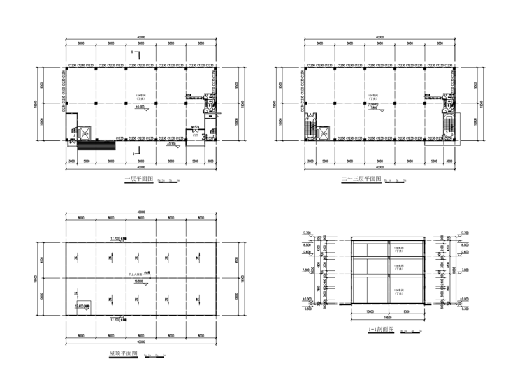
3F戶型(三層獨棟、雙拼框架結構廠房)
面積段:3層框架結構,建筑面積約800-2800㎡
4F戶型(四層獨棟、雙拼框架結構廠房)
面積段:4層框架結構,建筑面積約800-3800㎡
[項目產品特色]
? M1工業用地獨立產證,可分層單獨辦理產證
國千智能 · 聚焦智能化 打造新標桿
招商熱線:一五三七一三三六七一 一(劉經理)
聯系我時,請說是在南通廠房網看到的,謝謝!















未上傳身份證認證
未上傳營業執照認證